1
/
10
效果图
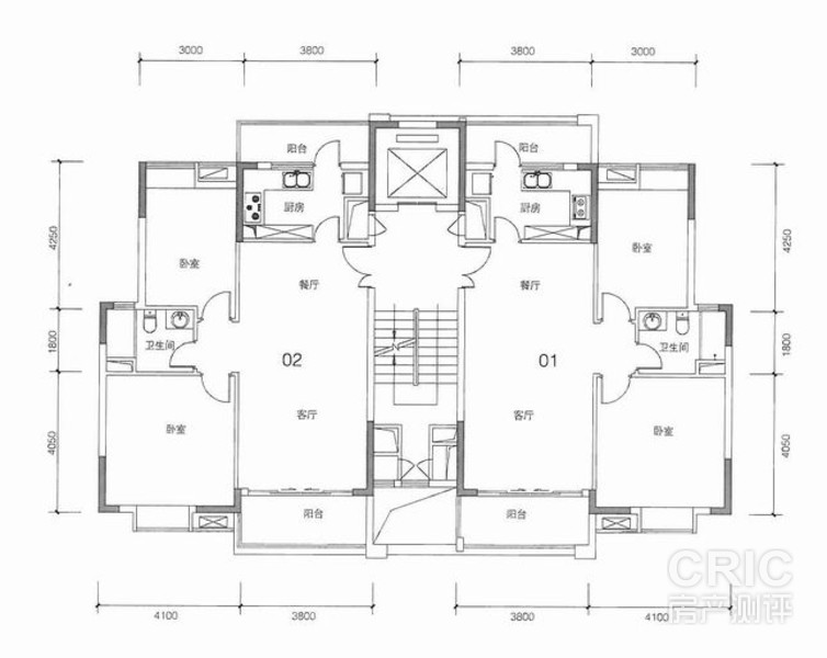
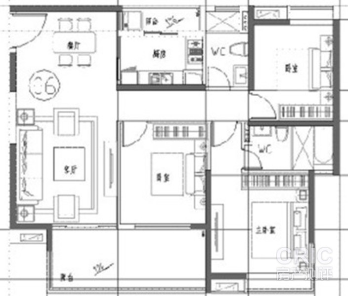
户型图
实景图
总平图
项目周边图